Profit $250kpa - 10%+ yield Sold!

21-23 Hursley Road, Newtown
$2,590,000
Block Of Units
  • 16
  • 14
  • 15
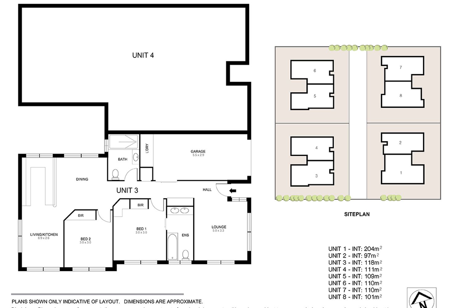
  • 2023 Square metres

Description

21 Hursley Road is a prime opportunity for those looking to capitalise on taking advantage of purchasing 8 units in one line. The complex is currently run as a profitable Serviced Apartment business however can also be offered as residential accommodation for those investors looking for 'set and forget' income.

Built in 2012, this beautifully designed inner-city complex boasts many extras including beautiful Caesar Stone bench tops, plush carpets, built-in wardrobes, ceiling fans in all bedrooms, reverse-cycle air-conditioning and large alfresco courtyards - perfect for privacy.

The designer open plan kitchens look out to the oversized dining and living spaces. Completed with high end finishes, quality fittings and a nice crisp clean colour scheme delivering a light and bright interior. The lock up remote-controlled garages have the added advantage of internal access. There is nothing to spend on these units as they are immaculately maintained to the highest standard.

'21 on Hursley' currently operates as high-end serviced apartments averaging 85-90% occupancy and maintained by owners working part-time. This quality asset is at ease in providing guests with spacious, spotless rooms and a level of comfort strongly desired. Delivering lifestyle with income, the owners offer guests contact-free check-in. Annual turnover sits at $350k-$400k. The opportunity exists to purchase the property and continue the business which can be easily achieved by maintaining the existing management system. Or if you want to “set and forget”, contract a manager to oversee the management and profit up to $250k pa.

Additionally, you can offer the complex as residential rental accommodation. Now is the time to invest in Toowoomba. This population growth is placing upward pressure on the supply of dwellings and will increase capital values and rental yields in the short term. With the potential rental income estimated at $140k, and no body corporate fees, the complex offers a 5+% return.

Call for a copy of the Information Memorandum.

Show More

Heating & Cooling

  • Air Conditioning
  • Reverse Cycle Air Conditioning

Outdoor Features

  • Balcony
  • Courtyard
  • Fully Fenced
  • Outdoor Entertainment Area
  • Remote Garage
  • Secure Parking

Indoor Features

  • Built-in Wardrobes
  • Dishwasher

Floorplans

Floor Plan 1

Floor Plan 2

Location