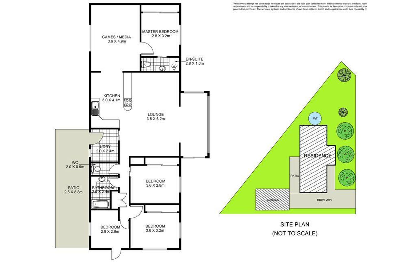
This family home is so convenient to everything you need - schools, shopping, medical, Zaraffa's! With open plan living, a separate rumpus, and large 2-bay shed, this 3 bedroom, 2 bathroom plus office home is everything you need.
Features of this property include:
– Space for BYO dishwasher
– Gas cooking
– Open plan living and dining
– 3 bedrooms + office with separate entry
– Ensuite, bathroom and separate toilet
– Internal laundry
– Large 2-bay shed
Please Note:
Available: 09/09/2025
Water: All water usage will be billed.
Built-ins: Yes
Toilets: 2
Car Accommodation: 2-Bay Shed
Fencing: Yes
Lawns and Gardens: Yard maintenance is the tenants responsibility
Cook top/Oven: Gas / Electric
Hot Water System - Electric
Please do not enter the property without a representative of Success Realty.
Enquire online and you will receive a link to book an inspection.






















